Neues Museum
David Chipperfield Architects
Kreativer Detailreichtum und grosse Handwerkskunst
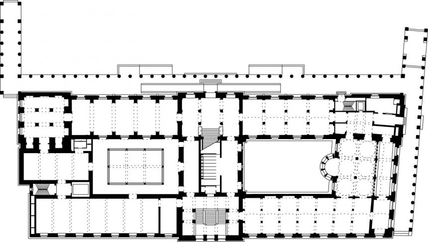
Das Neue Museum auf der Berliner Museumsinsel entstand zwischen 1841 und 1859 nach Plänen des Architekten Friedrich August Stüler.

Im Zweiten Weltkrieg wurde das Gebäude durch Bomben schwer beschädigt, in Teilbereichen sogar unwiederbringlich zerstört. Über Jahrzehnte hinweg war die ungesicherte Kriegsruine der Witterung ausgesetzt und erlitt weitere Schäden. 1997 gewann David Chipperfield Architects mit Julian Harrap im Ergebnis eines Gutachterverfahrens den internationalen Wettbewerb für den Wiederaufbau des Neuen Museums.
Die Wiederherstellung umfasst sowohl die Reparatur und Restaurierung der erhaltenen Teile als auch die Wiedergewinnung der ursprünglichen Raumfolge und des ursprünglichen Volumens durch Neubauteile, die den Altbestand ergänzen. Ausgangspunkt für die den Richtlinien der Charta von Venedig folgende archäologische Restaurierung war der vorgefundene oder besser geschichtliche Bestand in seinen unterschiedlichen Erhaltungszuständen. Fehlstellen wurden repariert, bleiben aber in Glanz und Oberfläche hinter dem Bestand zurück, um nicht als neue Kopie des Alten mit dem gealterten Original zu konkurrieren. Während die Restaurierung und Reparatur des Erhaltenen von dem Gedanken geleitet war, das Vorgefundene möglichst gut in seinem räumlichen Zusammenhang und seiner antiken Schönheit zur Geltung zu bringen, reflektieren die Neubauteile das Verlorene, ohne es zu imitieren.
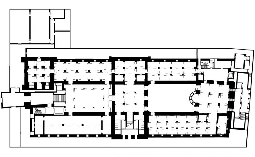
Als ruhige Ausstellungsräume wurden die Neubauräume aus großformatigen Fertigteilen in einem speziell entwickelten Beton aus Weißzement und sächsischem Marmor gefügt. In gleicher Weise wurde die dreiläufige Treppenanlage in der nur als Ziegelvolumen erhaltenen Treppenhalle neu wiederhergestellt. Als ziegelsichtige Volumen ergänzen der Nordwestflügel mit dem Ägyptischen Hof und dem Apollorisalit, die Apsis im Griechischen Hof und die Südkuppel die erhaltenen Teile. Mit der Wiederaufstellung und Ergänzung der weitgehend erhaltenen Kolonnade auf der Ost- und der Südseite des Neuen Museums wurde nach Osten städtebaulich die Vorkriegssituation weitgehend wiedergewonnen.
Auf der Westseite hingegen knüpft der dem Neuen Museum vorgelagerte geplante Neubau der James Simon-Galerie an die städtebauliche Situation des Neuen Museums vor der Freistellung der Westfassade im Jahre 1938 an.
Im Oktober 2009 wurde das Neue Museum als drittes generalsaniertes Haus der Museumsinsel wieder eröffnet. Damit sind nach mehr als sechzig Jahren die Sammlungen des Ägyptischen Museums und des Museums für Vor- und Frühgeschichte an ihren historisch angestammten Ort zurückgekehrt.
David Chipperfield Architects