Wohnhaus im Geistviertel
hehnpohl architektur
DIE INNERE FUNKTION NACH AUßEN TRAGEN
Das Einfamilienhaus für die Familie mit zwei Kindern befindet sich am Kriegerweg im Geistviertel im Süden von Münster.

Der Kriegerweg ist in den 1920er-Jahren angelegt worden, um Kriegsheimkehrern des Ersten Weltkrieges Bauland mit großen Gartengrundstücken zu überlassen. Diese erste Bebauung mit großzügigen, frei stehenden, zweigeschossigen Wohnhäusern mit Mansarddach wurde in den 1930er- und den 1960er-Jahren mit backsteinverkleideten, eingeschossigen Einfamilienhäusern mit Satteldach ergänzt. Eine Bebauung der Gartengrundstücke erfolgte ab ca. 1980.
Setzung und Größe des Wohnhauses stehen im Kontext zum städtebaulichen Umfeld. Die Verwendung des Backsteins schafft Bezug zu den unmittelbaren Nachbargebäuden. In Anlehnung an die ersten Siedlungshäuser ist seine Gestalt eigenständig, es steht vor allem im Dialog mit dem umgebenden Grünraum. Der südliche Garten grenzt an ein größeres, naturbelassenes Regenrückhaltebecken des Kleibaches, der durch das Geistviertel fließt.
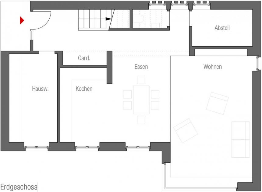
Das Haus trägt seine inneren Funktionen nach außen – die Nord und Straßenseite zeigt den überdeckten Eingangsbereich, den Galerieflur und die „gelochten“ Nebenräume, die Süd und Gartenseite öffnet die Wohn- und Schlafräume zum Garten und zum Naturschutzgebiet des Kleibaches. Das Innere des Hauses ist im Erdgeschoss mit fließenden Räumen organisiert – der Endpunkt der Raumfolge ist der Blick vom Wohnzimmer in die Tiefe des Gartens. Die Räume im Obergeschoss umschließen einen Galerieflur, der dem Spielen, dem kreativen Arbeiten der Familie und der Ausstellung von künstlerischen Arbeiten dient.
Ein wesentlicher Aspekt des Entwurfes war über das Wohnen hinaus die Schaffung von gut proportionierten, tageslichtbeleuchteten Räumen und Wandflächen, die der im Haus wohnenden Künstlerin die Möglichkeit geben, ihre Arbeiten in ihrem direkten Lebensumfeld zu präsentieren.
Der scharf geschnittene Baukörper folgt einem subtraktiven Gestaltungsprinzip und transferiert es aus einem formalen in einen architektonischen Zusammenhang. Einschnitte formulieren den überdachten Eingangsbereich, den Treppenraum, die Dachterrasse im Obergeschoss oder die Öffnung des Wohnzimmers zum Garten. Gestalterische Elemente des „bürgerlichen Wohnens“ der ersten Siedlungshäuser sind in die Gegenwart übersetzt worden: die Terrasse mit Außentreppe, die Sitz- und Blumenbank im Wohnzimmer, die Dachterrasse, die bodentiefen, zweiflügeligen Fenster, die „Laube“ unter der Hainbuche ...
Die bauliche Umsetzung dieses Konzeptes erfolgt über die Materialität und Solidität des Backsteins als fußsortierten Brand im Kontrast zu den großen Fensterflächen. Die innere Haptik des Hauses wird bestimmt durch massive und geölte Eichendielen, unbehandelten Basaltlavaboden und die körnig verputzten, mineralisch gestrichenen Wände.
Das bislang als Obst- und Gemüsegarten genutzte Grundstück ist in das Gesamtkonzept integriert. Der Obstbaumbestand am südlichen Rand bildet die Baumkulisse der Grundstücksgrenze. Die große Hainbuche wurde mit dem Haus und dem Terrassenbereich „umbaut“ – sie spendet Schatten und Sichtschutz und ist der „Anker“ der jetzt das Grundstück abgrenzenden Hainbuchenhecke.
hehnpohl architektur