Dominikuszentrum München-Nordheide
meck architekten
Skulpturales Bauen
Das um einen Patio angelegte Gemeindezentrum strahlt nach außen eine monolithische Ruhe aus und steht im wohltuenden Kontrast zu der von Vollwärmeschutz geprägten Bebauung der Umgebung.

Der skulpturale Baukörper beeindruckt durch seine klare Formensprache sowie die sorgfältige und hochwertige Materialverarbeitung. Der verwendete Klinker verleiht dem komplexen Ensemble Lebendigkeit, Haptik und manuelle Qualität zugleich. Der Backstein strahlt Ruhe aus und steht für eine, die Zeiten überdauernde Baukultur. Durch das Spiel mit verschiedenen Ebenen entsteht ein Spannungsverhältnis, welches sich im von bläulichem Klinker geprägten Andachtsraum durch eine ruhige Raumgestaltung auflöst. Das künstlerische Gestaltungskonzept und die gekonnten Details stellen eine große Interpretation von Backstein-Mauerwerk dar.
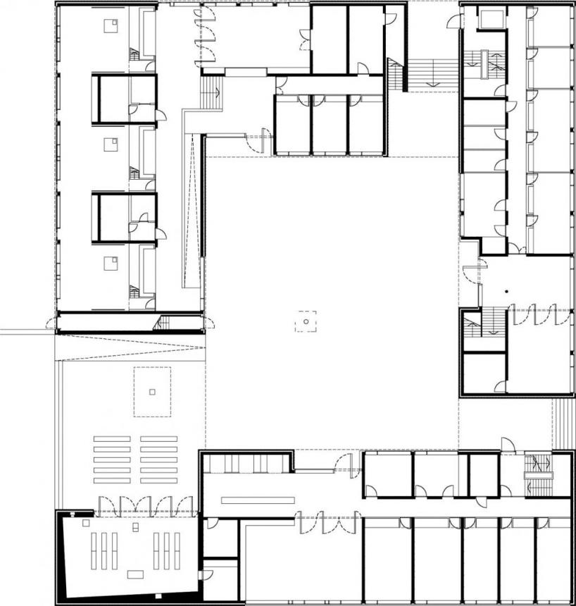
Im Münchner Norden entsteht an der Nordheide ein neuer Stadtteil für fünftausend Bewohner. Für diese ist an städtebaulich herausragender Stelle ein geistliches Zentrum mit sozialen Einrichtungen errichtet worden. Durch das neue Zentrum, das einen Andachtsraum, ein Pfarrheim, eine dreigruppige Kindertagesstätte, sowie die katholische Jugendstelle München-Nord und das Caritas-Zentrum München-Nord beinhaltet, soll Raum für ein vielfältiges pfarrliches Leben in dem neuen Stadtteil angeboten werden. Aus diesem Anlass wurde vom Erzbischöflichen Ordinariat München, Baureferat, ein beschränkter Realisierungswettbewerb ausgelobt. Der Entwurf des Münchner Architekten Professor Andreas Meck erhielt den 1. Preis. meck architekten wurden daraufhin mit der Realisierung betraut.
Das Dominikuszentrum bildet mit seiner klaren und kraftvollen Formensprache eine kulturelle und geistige Mitte in dem neu entstandenen Stadtteil an der Münchner Nordheide. Es schafft damit ein angemessenes Gegenüber zu dem in direkter Sichtbeziehung stehenden städtischen Platz im Norden des Quartiers. In einer aus Ziegel geschnittenen architektonischen Skulptur gruppieren sich der Andachtsraum und die sozialen und kulturellen Einrichtungen um einen zentralen, kontemplativen Innenhof. Verschiedene Durchgänge laden zum Betreten oder zum Hindurchgehen ein. Dabei bildet der zum Platz hin orientierte Hauptdurchgang gleichzeitig die Raumhülle für den erweiterten Andachtsraum. Der Andachtsraum ist das sinnstiftende und geistliche Zentrum der Anlage. Sowohl aus der Grün-Diagonale als auch in der Perspektive der Neuherbergstraße ist er als prägender, die Basis der anderen Einrichtungen überragender und den Quartiersplatz dominierender Körper erlebbar.
An den Andachtsraum schließt das Pfarr- und Jugendheim mit seinem großen Pfarrsaal und den verschiedenen Gruppenräumen an. Links neben dem Hauptdurchgang der dreigruppige Kindergarten mit seinen Spielflächen. Im ersten Obergeschoss ist die Jugendstelle für die Dekanate Feldmoching und Freimann angeordnet. Die Räume orientieren sich auf zwei große Dachterrassen, die einen sicht- und lärmabschirmenden Freibereich für die Jugendlichen bieten. Gegenüber der dreigeschossige Gebäudeteil der Caritas mit Mehrzweckräumen, Büros und Verwaltung. Sämtliche Einrichtungen werden vom Trompetenbaum überstandenen, gemeinsamen Hof aus erschlossen. Prägendes Material der Anlage ist ein besonders hochwertig gebrannter roter Ziegel; ein Torfbrandklinker. Er steht mit seiner Größe und seiner manuell-haptischen Qualität für den menschlichen Maßstab und für zeitüberdauernde Baukultur und erinnert an das Urmaterial Erde. Mit Bedacht wurden besonders unregelmäßige Steine ausgewählt, um der Fassade ein hohes Maß an Lebendigkeit und Plastizität zu geben. Dabei ist der Ziegel so eingesetzt, dass er die Idee eines aus einem Ziegelvolumen geschnittenen Körpers unterstreicht. An den Außenwänden des Andachtsraums sind 300 Kreuze aus Bronze in die Ziegelfassade eingemauert; die Anordnung in Dreiergruppen symbolisiert die Dreifaltigkeit. Diese aus dem Maßstab der Hand entwickelten Kreuze sind auch in den inneren Räumen des Gebäudes als Raumkreuze zu finden.
Namensgeber der Mutterpfarrei St. Gertrud ist die Heilige Gertrud von Helfta (1256 – 1302). Bekannt als eine der großen Mystikerinnen Deutschlands, erlangte sie durch ihre religiösen Schriften und Bibelübersetzungen größte Bedeutung. Die Predigt des Wortes stellte aber auch einen Schwerpunkt des Wirkens der Dominikaner dar, nach denen das kirchliche Stadtteilzentrum benannt ist. Das Thema Schrift als Inhalt und Definition des christlichen Glaubens wird daher zum zentralen Schwerpunkt eines in der Architektur verankerten übergeordneten Kunstkonzepts.
Die Proportion des Andachtsraums ist aus dem goldenen Schnitt entwickelt, und zwar sowohl im Grund- als auch im Aufriss. Der Raum wirkt nur auf den ersten Blick rechteckig; eine leichte Drehung der beiden Außenwände aus dem rechten Winkel erzeugt eine Raumdynamik, die zum Ort der persönlichen Andacht, der Maria, führt. Durch ein großes Oberlicht fällt Tageslicht durch Textauszüge des Glaubensbekenntnisses und füllt den Raum mit Bedeutung. Grund für das Licht ist die Farbe Blau.
Die Farbe Blau bildet die innere architektonische Hülle des Andachtsraumes und gibt dem Raum neben der besonderen Farbstimmung des Lichts geistigen Inhalt. Der blaue Raum ist das Zeichen für das Himmlische, das Göttliche und für die Farbe der Maria. Die von meck architekten im Wettbewerb formulierte Idee eines blauen Raumes wird mit der Arbeit „raumikone 2“ der Künstlerin Anna Leonie als Konzeption eines monochromen Wandbildes umgesetzt. Der Künstlerin gelang es dabei, mit der Wand als Bildgrund der Farbe Blau eine besondere Intensität und Leuchtkraft und damit dem Raum eine besondere Stimmung zu verleihen: „Die Transparenz der Malschichten lässt das Trägermaterial in Form der archaischen Tonziegel sichtbar, sodass sich die Malerei wie eine transzendente Himmelssphäre mit der irdischen Raumschale zur sakralen Aussage verdichtet.“ (Anna Leonie)
Der mit der künstlerischen Umsetzung des großen Oberlichts betraute Künstler Andreas Horlitz geht mit seiner Arbeit „Credo“ (Konzeption meck architekten) auf das Glaubensbekenntnis ein. Insgesamt auf sechs Glas- und Schriftebenen wird der Text des Glaubensbekenntnisses in lateinischer Sprache und ein Auszug aus einem handschriftlichen Missale des 15. Jahrhunderts überlagert. Im Zusammenspiel der transparenten, bedruckten und verspiegelten Glasflächen mit dem Blau des Raumes entsteht eine intensive und eindrückliche Raumstimmung. Das Konzept für die Mariendarstellung stammt von Anna Leonie. Sie konzipierte mit ihrem Entwurf „Lichtikone“ eine Mariendarstellung aus durchscheinendem, hinterleuchtetem Alabaster. Sie nimmt damit sowohl Bezug auf die Perspektivenumkehr klassischer Ikonen als auch auf das Leuchten der Ikone von innen, das „göttliche Licht“. Die Ikone wendet sich dabei, aus der Ebene der Wand gedreht, dem Kreuz zu. Das aus dem gleichen Material der Ikone, aus Alabaster, geschichtete Kreuz wurde vom Künstler Rudolf Bott entworfen. Das liturgische Konzept sieht eine sich gegenüberliegende Anordnung von Altar und Ambo vor. Die Mitte des Raumes, dem „Göttlichen“ vorbehalten, bleibt frei. Dieses Konzept bringt in besonderem Maße den „communio-Gedanken“ zum Ausdruck: Mit der Betonung der Mitte wird der Gedanke des Gemeinschaftlichen hervorgehoben.
Der Ort für den Ambo stärkt das „Wort Gottes“ und ermöglicht das Auflegen der kirchenjahreszeitlichen Bibeltextstelle. Durch das Öffnen der fünf großen, bronzeverkleideten Tore kann der Andachtsraum nach außen erweitert werden; die dafür vorgesehene Anordnung von Ambo und Kirchenbänken lässt den Andachtsraum zum Chorraum, den überdachten Außenbereich zum Kirchenschiff werden. Altar, Ambo, Priestersitz und Kirchenbänke wurden von meck architekten als reduziert gestaltete Eichenholzmöbel konzipiert.Der Altar folgt dem Motiv des Tisches; er ist aus großen ungestörten Eichenbohlen gefügt. Die Fügung der Stirnseiten ergibt in der Ansicht ein Kreuz (in der Form eines ÔŽ). Die inhaltliche Auseinandersetzung mit den Themen „Glaube“ und „Heiliger Geist“ ist aber nicht nur auf den Andachtsraum beschränkt. Sie setzt sich im Zusammenspiel zwischen Kunst und Architektur im Gesamtkomplex des Dominikuszentrums fort; vom Grundsteinspruch „Das Pfingstwunder“ bis zur Schriftprägung der Ziegel. Dabei sind neben Anna Leoni, Andreas Horlitz, Rudolf Bott auch die Künstler Barbara Butz-Glas, Friedhelm Falke, Ekkeland Götze, Hermann Biegelmayr und die Grafikerin Stephanie Krieger zu erwähnen, die ihren Teil zum „großen Ganzen“ beigetragen haben.
meck architekten