Haus am Markt

hehnpohl architektur bda

Haus am Markt

Denkmalgerechte Sanierung

Bei der Sanierung dieses Hauses am Markt wurden die typischen Fassadenelemente des späten 19. Jahrhunderts sorgsam wieder herausgearbeitet: gelber Backstein und historisches Zierwerk.

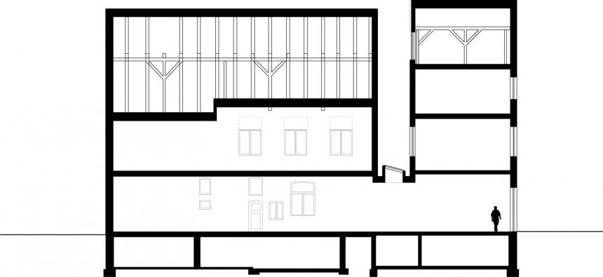
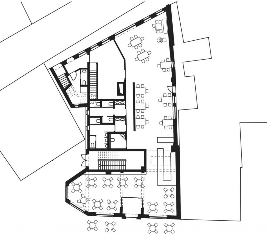
Das Haus besteht aus zwei Teilbaukörpern mit unterschiedlichen Fassaden. Der Gebäudeteil an der Propsteigasse mit einer Fassade aus gelben Backsteinen und historistischem Zierwerk wurde im Jahre 1892 erbaut, der marktseitige Teil mit einer Putzfassade wurde nach Abbruch des Vorgängerbaus um 1910 erstellt. Der zu den Straßen giebelständige Baukörper ist polygonal. Die neu errichtete Gastronomie im Erdgeschoss ermöglicht einen Durchblick vom Markt bis zur Propsteigasse. Während im marktseitigen Vorderhaus eher Caféhaus-Atmosphäre herrscht, dominiert im Hinterhaus eher ein rustikaler Charakter. Hier finden auch Veranstaltungen wie Poetry Slams, Konzerte oder Lesungen statt. Aus konstruktiven, bauphysikalischen und brandschutztechnischen Gründen wurde eine nicht sanierungsfähige Zwischendecke aus Holz entfernt und durch eine Sichtbetondecke ersetzt.

Die denkmalgeschützten Fassaden wurden sorgfältig freigelegt, nach historischen Befundspuren untersucht, soweit als möglich wiederhergestellt und saniert und nur in Teilflächen subtil ablesbar ergänzt. Eine denkmalgeschützte Innenwand mit Backsteingefachen im Hinterhaus wurde erhalten. Eine Stuckdecke im Vorderhaus wurde freigelegt und wiederhergestellt, sämtliche Innenwände wurden mit flachsbewehrtem Lehmputz versehen.

hehnpohl architektur bda

Ort
Beckum, Deutschland
Bauherr
Sybille Niehaus
Architektenprofil
Grundstückfläche
364 m²
Bebaute Fläche
364 m²
Nutzungsfläche
800 m²
Bauzeit
2015 – 2017